- ホーム
- 採用情報
新卒採用
| 募集職種 | 施工管理職 / 工場職 |
|---|---|
| 仕事内容 |
|
| 採用予定人数 | 2名 |
| 雇用形態 | 正社員 |
| 賃金 | 基本月給 203,000円〜 |
| その他手当 | 時間外手当/資格手当/住宅手当/家族手当 |
| 役職/職務手当 | 10,000〜50,000円 |
| 通勤手当 |
会社規定に基づき支給 (上限:26,000円) |
| 賞与実績 | 年2回(8⽉、12⽉) |
| 給与改定 | 年1回(4⽉) |
| 勤務時間 |
8:00〜17:00 (休憩:90分) |
| 休日 |
日・祝日 第2・4・5 土曜日 夏季休暇(8月13日〜8月15日) 年末年始休暇(12月29日〜1月4日) 年間休日数 110日 |
| 有給休暇 | 入社半年経過後10日 |
| 社会保険 | 健康保険/厚生年金/雇用保険/労災保険 |
| 福利厚生 |
資格取得支援(全額会社負担) 若手支援制度(家賃補助)30歳に達するまで家賃の一部を補助 入社に伴う引っ越し費用を上限10万円支給(新卒限定) 社員全員ネットフリックスが無料!また、様々な場所で割引が使えるベネフィット・ワンにも加入しています! |
| 就業場所 |
|
| 選考方法 | 面接 |
| 採用担当窓口 |
〒812-0016 福岡県福岡市博多区博多駅南3-18-4 採用担当:総務部 坂本 TEL:092-441-1751 |
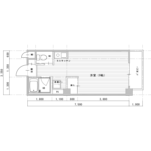
社員寮紹介
就職されるかたへ、安心してすぐに暮らし始められるよう社員寮をご用意しております。
お部屋のタイプはワンルームタイプの独身者向けとなっております。近くにはコンビニをはじめ、スーパーやホームセンターなどあり非常に便利です。
建物は5階建ての総部屋数8部屋で、全部屋フローリング約9帖の広さでエアコン、キッチン、クローゼット完備。もちろん各部屋の施錠は出来ますし、トイレ・お風呂別です。また、博多駅まで徒歩15分圏内ですので、繁華街にも移動にも便利な場所です。
※満室により入居不可の場合、30歳に達するまで家賃の一部を補助する制度を設けています。
職場見学や寮の見学など相談質問など、お気軽にお問い合わせください。



